作品信息
作品展示
风之气场,动万物
水之流变,润苍生
金科·南山
将自然元素加入东方美学之中,
于南山山麓酿造蕴含古典意蕴的纯粹墅区,
将自然诗意与东方美学融合,埋入建筑的肌理之中。
◆项目实景图
金科·南山位于重庆南岸城区东部,西临南山高尔夫国际社区,未来区域发展潜力较大。周边配套资源完善,临近内环高速,尽享南山风景区优渥的环境资源。
◆项目区位图
青山绵延,远离尘嚣。穿过南山隧道沿高速公路进入高尔夫景区,再沿不长的公路盘山而上,就这样,遇见金科·南山。
◆鸟瞰效果图
背靠南山山脚而又地处高处,周边地形呈多级台地顺次下落,这样的环境既具备了“日落山水静,为君起松声”的静谧和坚韧,又不乏归隐山涧田林之外对“入世”的接纳和包容,低调又引人注目。
◆云烟缭绕的南山与开阔的场地视野
金科·南山规划之时对场地状况进行竖向分析,由于高尔夫球场与基地存在高差,设计充分需考量了场地标高与视线关系,形成了现在的规划方案。
◆场地标高分析
创造一个林壑清爽、有别于重庆喧嚣市井文化的场所氛围,是设计的出发点和贯穿始终的理念。
◆示范区建筑效果图
为了最大限度的利用环境优势,场地被局部抬高,使建筑的视线越过周边别墅区屋顶,直接与大片的高尔夫球场产生对话;同时局部下挖,降低建筑入口和屋顶标高,改善可达性和整个建筑群高度的一致性;此外下挖也为下沉庭院等更灵动的空间创造条件。偏远的位置和复杂的高差虽然带来建造的不便,但也是整个场地难以复制的优势。
◆山间远眺示范区实景图
周边树影婆娑,松涛起伏,顺着草籽和泥土的香味循道而上,蜿蜒的山行更像是对自然秘境和内心宇宙的探索修行。
◆示范区俯瞰实景图
设计运用“借景”的手法,通过镜面反射材料将崇山峻岭倒影在建筑表面,用视觉上的交互融合表现人与自然的对话。水平向的体量相互交错,顺应南山走势,给天光云影的反射赋予动态。整个建筑如同矗立山间的盆景,安静优雅地记录时光的流逝与自然的永恒。
◆建筑形体生成示意图
◆山野绿林间的“云台”
三个简单的体块融合连接,相互交错咬合,呼应着山脉的交错起伏。空间层次顺应丰富的景观层次,与周边自然环境融为一体。
LINES AND ARTISTIC CONCEPTION
金科·南山示范区内,前场层层而上的叠水景观与曲折的路径为初识建筑提供了步移景异的过程。曲线异形云柱像假山一样托起一条水平镜廊,反射山景,如画卷般把周边环境纳入建筑自身。
◆“林映云台”的前场形象
设计师曾说:“当下社会的发展让我们重新审视人与自然之间的关系,作为人们活动的空间载体,让自然和人重归情感上的平等和谐关系是当下不断探讨的主题。南山下的这次实践便是我们探索建筑与环境之间各种对话形式的一次尝试,希望喧嚣市井的嘈杂之外,依旧有一个场所能让人们感受自然、生命和四季的变化。”
◆中庭提供仰观天空的窗口
◆不同视角下的场景切片
◆流光溢彩的夜景提供了另一番意境
设计通过“云柱”“镜廊”“扇面”“檐边”等构造手法,在呈现建筑形态之时,更是将重庆“山城”的印象演绎至极。
双曲云柱
◆异形门洞连接内外空间
◆借云柱门洞实现“纳景入园”
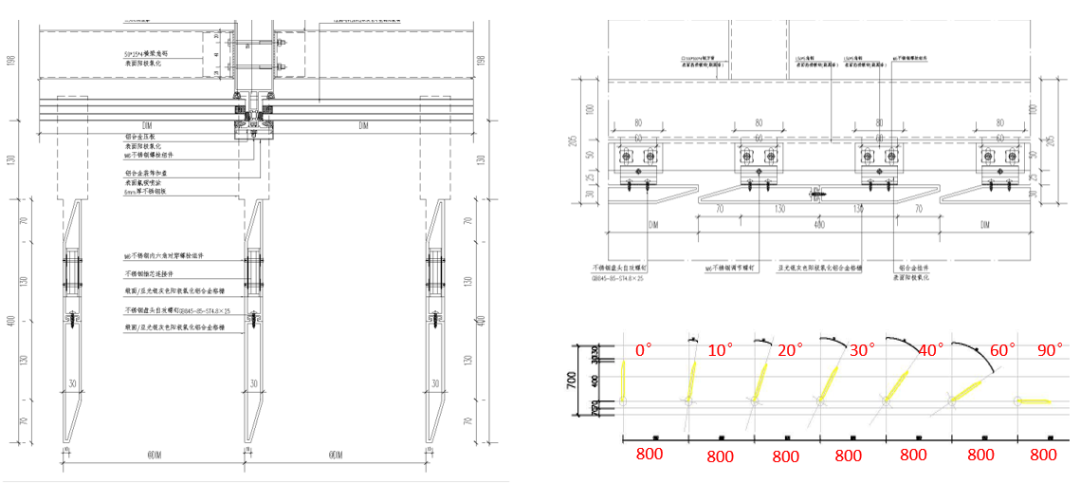
云柱 | 异形的云柱作为入口处的标志性设计,雕塑感的曲线造型打破内外的界线,形成一个标识性的灰空间。在尝试了多种材料后采用了内部混凝土柱支撑、外部GRC混凝土板曲线造型的方案。
◆建模效果图与实景图对比
整个生产过程包括但不限于:参数化建模、修模、GRC专业厂家配合定制生产安装方案、常规单曲GRC板工厂预制养护、木龙骨定制并现场放养制模、双曲扭转部位现场制模生产并养护、现场定位安装拆模、密封及罩面、拼缝二次处理、定气孔装气盖……
◆GRC异形柱设计与现场施工过程
一系列过程的精细与繁琐,从体量的反复推敲及参数化运用、从260块部件拟合双柱,从工厂与现场并行预制的方案,从定制木龙骨100%现场放样,都体现出建造团队对建造精工化和设计效果的执着追求。
映射南山
◆高反低透镜面玻璃长廊
◆镜廊大样与施工现场
镜廊 | 大跨度镜面连廊取自卷轴的意向,体系半隐框玻璃幕墙、高反射底透玻璃、斜切铝板及型材檐边,构成42米长的矩形画框,将层峦叠翠的南山风光映入其中,似一幅泼墨画卷留于建筑之上。
扇面格栅
◆虚实渐变的铝板幕墙
◆铝板幕墙旋转方式设计
扇面 | 渐变的铝板格栅则以扇面为原型,表现出层次分明的渐变。30x400的反向翼形铝合金格栅作为基本单元,通过七级角度变化,按照垂直段、渐变段、平直段顺序渐变,与曲面的玻璃幕墙结合,形成虚实过渡的外立面效果。
檐边型材
◆背立面檐框效果
◆多种材料的交接处理
檐边型材 | 项目中所有檐边线条均采用组合型材(压板配装饰扣盖)固定于完整密性的铝板上,利用压板的可调性,能尽可能保证装饰扣盖与铝板折角边齐平,同时檐边线条无胶缝打断且有利于隐藏铝板胶缝,折边无R角影响。
浅山黛影的画面被几何化的手段纳入到建筑环境中,整个体验流线也力求将该种手法的使用运用到极致。山道、树林与建筑共同构成一个具有纵深感的场所,既有山林野趣,又不失精心雕琢。
LANDSCAPE POETRY
景观设计表达的不仅仅是山居的诗意,更是情感与精神世界的映射,是人与自然的心之所向,安定沉静的生活场。在金科·南山,云水山居这样的景观意向和设计逻辑,让人群真正融入到城市个性的诗意生活和情感方式。
金科南山依山而建,摒弃城市的浮华造作,人居情怀依靠在山的精神性格下,被给予生活的安定感,以安静取代喧哗,让山风、云雾、水涧、草林回归,以现代的山居美学演绎一片自然净土。
金科南山示范区在设计构筑上提取山的自然体系,将山中不断变化的场景“云、水、雾、林”作为主要元素,让生态的自然美学融入到设计的肌理之中,通过视觉语言实现山间云水变幻的种种,体验者感受空间的尺度,与自然、山体、云层交会,重拾对山居生活的回归与想象。
水石祥云
项目示范区截取云在空中变幻的一帧,让片刻白云凝聚成富有标识度的印象门头——水石祥云,以现代数字化设计,展现轻盈多变的祥云入口。水石祥云的灵感来源于“云”的属性,圣洁流畅充满动感的形态变化,是抽象的艺术表达到可感知的空间语言的转化,将云的缥缈自然凝固再现。面向南山,水石祥云从宽高的形象逐渐削弱,随着柔软的曲线消陨而去。
山间雾林
入口到园内短短不到120米的距离,创造出行走在山林间的氛围。入口空间采用大体量的硬景将后场隔绝,保持神秘性,延续顺滑的步道阶梯,曲线自然地引导游览动线。转角植上高大杉木,在营造山林体验的同时,避免周边环境的干扰。以笔挺的水杉作为界面围合,利用其整体划一的姿态形成强烈的矩阵感,再加上丰富体量的种植,空间的纯粹跃然眼前。
万物不断向上生长、延展、愈合土地的创口,成为山体富含生命的底色。除了580棵高大水杉,乌桕、丛生金枝国槐等构成了园内的特色景树、低矮的狗尾草与紫色的鼠尾草此起彼伏,整体犹如一片律动的山野丛林,与纯粹的硬景形成冲突的戏剧化美感。
瀑隐华灯
除了自然界的原始景观,金科·南山示范区还融入了科技装置。瀑隐华灯,将新型防水LED屏幕融于景观,带来新的富有变化感的空间体验。在步入之初,目之所及,LED景墙结合水帘形成人行步道的第一印象,带给观赏者科技、未来、多变的空间感受。打破空间中水池的寂静,创造出科幻的鲜活,在虚幻变化之间寻找山间的真实。
云台瑶池
山的美,源自于这周层次中暗藏的万物。示范区地形有着山地特征,高差从预设入口依次增加,在建筑处形成制高点。云台瑶池以叠云托起建筑体量,创造出戏剧性的空间层次,人们度过白云山林,转圜而上,忽然进入云台瑶池,是偶然之遇的惊喜。
依偎于山体的水景,自然形成流动的曲线。铺装石材通过平面设计元素来体现云水元素的混合效果,用白色与芝麻白铺排衬托出水池的蓝。山涧清冽透彻的水汇集于此,拾阶而上的行动体验,搭配纯粹的蓝与白,呈现出山林的圣洁。丰富起伏的层次,蜿蜒回环的曲线,将山雨云水华为抽象艺术的描绘,在都市林间浮起一片蓝白梦幻之境。
从山中来,到山中去。当湿润的微风吹起,南山的凉爽在晴日的相应下,造就舒适的山间环境,金科·南山用自己存在的方式演绎山居的情趣。活跃的色彩,丰富的体验,水天一色的视觉盛景,它没有过于强势的构筑感,而是用包容和亲切,承载和创造传统文化的精神空间。当人们与山地相遇之时,找到这处令人神往的身心安定之地。
金科·南山整个体验区打造一个“山水无界”的概念,售楼处室内空间延续这一理念,用现代手法将东方山水云融入其中。
前台接待处背景一幅山水泼墨画屹然而现,“南山住着凡人,也藏着神仙,人们或居于繁华都市,或隐居于世外桃源,南山则是大隐于市的山居桃源”,金科·南山展现了一个未来生活的闲适雅境。
现代雅韵,内蕴乾坤。简洁、明快的空间,营造出质朴而澄净、宁静而优雅的意境,方寸间匠心至极。无论是亲切交流,还是静静地品一杯茶,都能够深感南山的悠扬气质。
COMFORTABLE LIVING SPACE
金科·南山为居住者构建的是蕴含着内在礼仪逻辑的场所感和身处居所时心理上的安全感。
◆多层住宅透视效果图
设计在外立面上仍保持了进化,颜色通透的玻璃幕墙与铝板格栅相结合,勾勒出线条利落、身姿挺拔的建筑形态,呈现出轻盈感与高级感并重的风格,时尚大气。
◆建筑单体组团空间分析
建筑围合形成多重院落,形成有开有合的景观空间,打造丰富的归家体验,强调礼序感。设计以对称行列式布置,楼栋间主采光面间距达到13m,山墙面间距达到10.4m,户间干扰较小且拥有较舒适的花园空间。
◆建筑单体一层平面示意图
◆建筑单体二层平面示意图
◆建筑单体三层平面示意图
(以上户型图仅供参考,不作为交付标准)
◆样板间实景图
建筑单体的产品逻辑方面,设计强调户型的空间尺度感,打造景观面广、采光面大、户型舒适度高、具备豪宅气质的别墅居所。舒适的横厅设计,使得室内更加明亮和宽敞,客餐厅结合的开放空间,打破传统的空间距离感,满足一家人在同一空间内互动的拓展。
温馨舒适的卧室空间拥有开敞的景观面,可以迎纳更多的阳光。充满艺术造型感的家具以温馨明亮的色彩呼应了硬装设计的简洁感,利用优雅的色调和流畅的曲线,让空间显得十分有当代品味。
