作品信息
作品名称:上海华润苏河湾润府样板房
Slogan:
浮生幻梦,海派风情,于方寸之间寻找诗意的生活。
企业简介:
杭州堂朝天意室内设计公司是由着来自全球各地充满激情的艺术家和设计师组成的专业的室内设计公司,设计师团队分别来自意大利、新加坡、中国台湾和中国杭州。以提供高端设计服务为宗旨,是一家有着开阔国际视野和拥有着中国一二线城市地产资深设计和项目管理经验的团队的设计品牌;在酒店、会所、售楼处、样板房等设计领域有丰富的经验并拥有一定的造诣。
作品展示
苏河湾-上海百年历史的交汇之处, 历经百年岁月,在蜿蜒奔流中新生。 |
海派文化的发源地
远东第一金融贸易中心
1843年,蜿蜒千年的吴淞江缓缓流入黄浦江,海派文化开始在这里发源。苏州河两畔往来商贾不断,是不折不扣的「远东第一金融贸易中心」。
如今,苏河湾的区位优势、核心地位已经毋庸置疑。从2010年启动城市更新,完成土地收储的苏河湾成为了静安区在内环内最大一片可以开发的钻石宝地。
超高层地标写字楼——由Foster操刀的200米高的苏河湾中心, 刷新苏河畔、浦西滨江的上海天际线 静安内环内最大公园——约4.2万㎡的苏河湾中央公园 百年历史遗迹——慎余里与天后宫等苏河湾区域的传统文脉建筑将进行翻修改造,焕然新生 特色商业——约5万㎡的商业部分已确定落户上海第一座万象天地 高端住宅润府以及三栋可售独栋总部办公——位于天潼路北侧的地块将以销售为主,吸引企业总部落户 |
苏河湾旁,安静与繁华交错, 令人恍惚,仿佛时空错世, 如同海上钢琴师的一曲旷世奇弹 ——浮生幻梦, 不仅仅是我来、我见、我得到, 更多的是在时间里沉淀,成为真正的自己 |
设计师以海上钢琴师为灵感
于苏河湾上谱写新的乐章
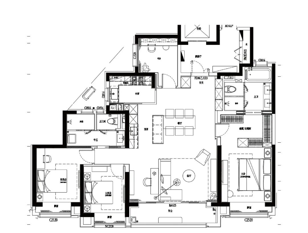
C-1户型
Enduring Movement | 无穷动
瞬息万变的世界
运动是永恒的
在“家”的空间里
寻找心灵的归属
怀抱生命的燃意
生命的魅力在于静
空间的含蓄在于雅
低调内敛的驼色柔化了整个空间,使客厅在提升品质感的同时赋予了空间沉稳的调性。抽象装饰画与极简风格的大理石肌理相互碰撞,极富艺术穿透力。
「让爱和有趣的点滴
来创造我们与众不同的人生」
——张过量
置身于休憩的空间,视线聚焦于张过量的雕塑作品「成长的无可替代」,将生活美学渗透于点滴角落,在设计细节上尽显人文关怀。摒弃对刻板美感的盲求,空间魅力的探索同样考验设计者对全新美感的敏觉度。
大漠孤烟直 长河落日圆
直线与圆交纵阐释东方意境,不同线条的碰撞锤炼出高级美感,「FLOS」为空间注入别样艺术气息。精致的餐具在灯光的衬托下更加的别致,尽显极致的生活品质。
刚柔并济,是百炼钢与绕指柔的完美融合。
抽象雕塑,结合柔和的灯光,静谧的氛围使都市人得以在书房舒缓身心,成就自我。
主卧的设计捕捉到居住的本质,平衡不夜魔都的日常与海派文化的底蕴。美学的笔触勾勒在每一处细枝末节,赋予器物最旺盛的生命力,为生活注入价值。
薛扬作品「你是未来」每晚于床头陪伴着女孩沉入梦乡,将少女心的梦幻根植于无限想象。其流露出对日常生活经验的寻觅与追忆,以及对未来美好生活的期待与向往,从而使整个空间蕴含着艺术与人生的深刻思考和独特见解。
静谧深邃的蓝成为了贯穿男孩房的线索,融合抽象线条与黑白几何,增加空间的节奏感与现代时尚感。
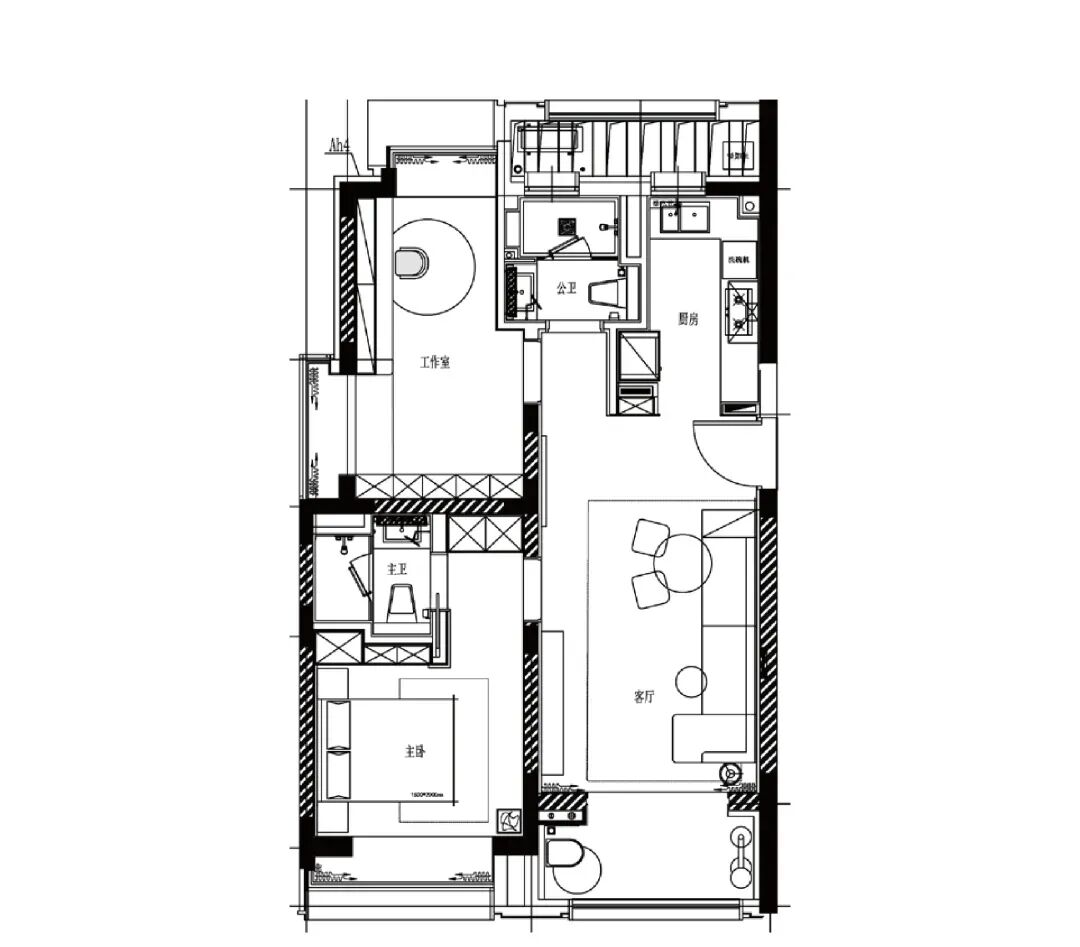
B-2户型
The Dream | 极致功能居
「家」给予我们
心灵的庇护
梦想的守护
我们努力地渴望着自己的梦想
成就自己一生不平凡的「辉煌」
大自然中的任何一件事物只要与艺术产生了碰撞之后,都会产生相对的艺术品和艺术现象。
抽象线条装饰画与GILLES CAFFIER的花瓶系列,巧妙地给客厅着以绿色,将自然本真还原至高品质与艺术感的生活中。
窗外的绿延续至屋内,如静水流深,保有舒达的心境,维持赤忱的追求。
绿意渲染下,空间更加灵动且富有生机。
兴趣的多元化在收藏间得以满足,处处弥漫着活泼而热烈的自由因子。在潮流与经典的对话中,空间表达也得以多元化。
素色的家具与空间中不同的色彩产生了和谐的情感连接,既开放兼容又大方得体,具有流畅缓慢曲线的灯具使得空间有着油然而生的艺术格调,同时也提升了家的视觉舒适感。
冷暖交织于梦幻,阳光下,儿童房里有着恰到好处的温暖与平静。抽象的装饰画成为了空间中跳跃的音符。
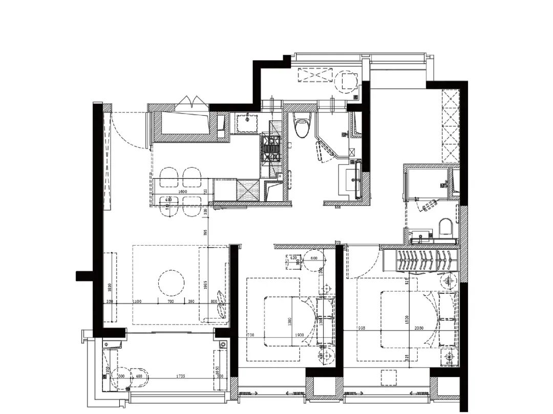
A-1户型
Silent Night | 新都市女性
Silent是电影男主在第一场斗琴中的比赛曲目。它所表达出来的宁静,光明,以及“新“,是A-1户型的灵感来源。设计师以此打造摩登上海的新锐一代年轻人对现代都市生活的理解。
看似平凡而平淡的居住空间
却隐藏着生活的细节
与生活对话,在家中重返自我。功能一体化的客餐厅,尺度宏阔,生动的日常以千百种姿态浮现于家的每一个角落。
「Jarre aerobull」斗牛犬音响静置台面,为现代都市生活注入时尚趣味。低饱和度天蓝色点缀空间,结合柔软的材质缓缓勾勒出温柔与优雅。
蓝色蔓延至主卧,由外至内让空间叙述更为连贯。暖色的灯光通过玻璃折射至角落,光线变化的无穷魅力尽收眼底,空间氛围变得更为艺术。
任磊的「安吉尔」系列作品——「思云」静置角落,他通过雕塑呈现心中视觉的空间形象,让观者透过雕塑艺术从更深的层面与世界产生对话,任灵感穿梭在重重云团之上。
无穷的思绪往往需要迸发于广阔的天地,书桌连通飘窗,增加工作台面空间,千万灵感任意舒展。
书桌纵向延伸至一字型衣物展示柜,在这里深藏着有关优雅的故事,重塑生活与工作的关系,空间格局变得更为丰富多元。
阳台一隅,猫咪的柔软抚慰着主人的心灵。周末阳光弥漫,在属于自己的温馨角落里静享悠闲时光。
在海派文化诞生的起点,在东方文明丰厚的积淀中,我们于方寸之间寻找诗意的生活。
项目平面图
C-1户型平面图
B-2户型平面图
A-1户型平面图
项目名称| 上海华润苏河湾润府 设计公司| 杭州堂朝天意室内设计有限公司 设计团队| 释圣杰、丁奇、虞彦君、颜瑟、叶施贝 空间性质| 样板间 项目面积| 180 ㎡、96 ㎡、89 ㎡ 坐落位置| 上海 摄影公司| 三像摄 |
关 / 于 / 我 / 们
HPID 全球视野下的中国设计
▼
堂朝天意室内设计公司是由着来自全球各地充满激情的艺术家和设计师组成的专业的室内设计公司,设计师团队分别来自意大利、美国、新加坡、中国台湾、中国北京和中国杭州。以提供高端设计服务为宗旨,是一家有着开阔国际视野和拥有着中国一二线城市地产资深设计和项目管理经验的团队的设计品牌;在酒店、会所、售楼处、样板房等设计领域有丰富的经验并拥有一定的造诣。
同时赢得了万科、华润、远洋、世茂、阳光城、龙湖、中铁、旭辉、金辉、合景泰富等知名地产集团以及万豪等酒店管理公司的信任和肯定,并有着长期的合作关系。
我们认为:未来并不是按照设想去实现的东西,而是在需求和希冀交织变化中创造出来的。新的一年HPID人们会积极面对社会和时代的迅速发展,寻找西方设计和东方传统碰撞点,立足生活,不断革新思维和技术,新旧并陈,实现东西方文化完美结合。
