地产销售中心
创新的设计就该打破常规
在快节奏的都市生活中,人们越来越不满足于单一功能的生活需求,总是追溯创新与多元化。在同一个空间区域既要有传统的功能理念,又要在原有功能之上激活并重塑出设计的新思潮。
万科南通海上明月售楼处的设计就颠覆了常规,很好的融合了这一理念。

售楼处位于南通,面积为 1400㎡,由万科、乐尚联手打造,与其说它是一个售楼中心,倒不如说是一个小型城市社区的缩影更合适。
如果说在各个细节都下足功夫的售楼处,是吸引客户愿意多停留的前提,那么这种新型社区模式的售楼处就更能吸引人群的到来。

此次,乐尚以未来社区生活方式为切入口,从生活日常、娱乐、文化等场景中抽取主题元素,跟随当下地产业的发展趋势,将售楼处往「小型社区」的方向进化,借由实体空间打造出拥有专属项目品牌 IP 符号的新一代销售中心。通过设计的表达,营造和展示出特属于「海上明月」的文化和生活理念。


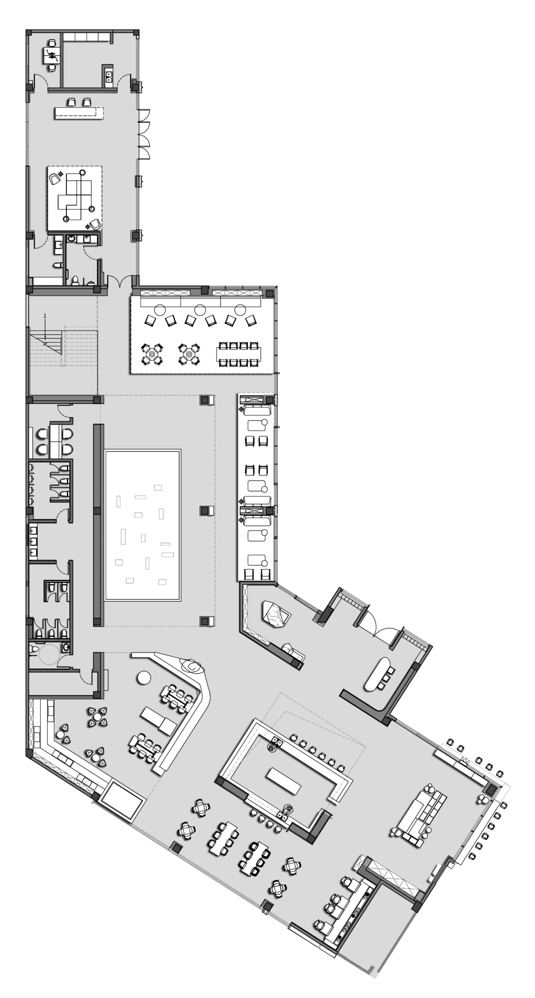
整个空间内除了惯有的前厅、接待区、洽谈区、沙盘区之外,还增添了餐厅、书店和生鲜超市几大模块。

门厅
步入门厅,上浅下深的拼接木饰面墙,流畅的轴线延伸视觉,带来空间维度上的延伸,前台用大理石与金属面板结合,通过材质上的转变凸显空间的个性与气场,顶部用芦苇草编出的装置吊饰点亮了空间。坐在接待台边沿思考的兔子,增强了空间记忆点,在思想上建立起了用户与品牌之间的沟通场景。与此相对的是文创展示区,乐尚在对市场上相关空间案例做了针对性研究后,创造了这个区域,希望借由咖啡、书、茶、手工、花艺、家居等多元化内容,激发出人们主动交流共享的场景。层架上摆放的一件件物品,有着浓郁的生活气息,仿佛置人于闹市中,充满了烟火气,瞬间让心生向往。前厅旁边的生鲜超市,既能展示品牌人性化的理念,亦能精准满足社区运营的销售需求,还能进一步增强了售楼处对顾客的吸引力。作为积聚人气的生鲜超市,拥有巨大的市场潜力,它不光是居民生活的必需品,还占据着日常生活的重要地位。视觉之上,也是对未来社区生活方式的理解和传递。整个空间融合了不同的装饰性元素及细节,强调朴实自然的生活态度,通过多样化的设计手法和生活化的内容呈现,演绎出别样的场景单元。这也是经过考量后选择顺应城市生活及消费的迭代升级。餐厅的加入也展现了售楼处丰富的可变性和场景融合性,从「共享共生」的理念出发,进一步营造出更多与业主之间的互动分享。

凭借着这种叠加商业的模式,让进入售楼处的每一个人都有温馨宜人的感受,从而在另一个层面上加深了对售楼处的印象。
将餐厅不同功能模块通过人文化的氛围营造,完整组织在一个大的空间里,既基于展售及未来运营模式的双重考虑,又输出统一品牌价值观。餐厅旁边的书店为来访者带来了更多层次的感官体验,这里放置着各种绘本、书籍,于静谧的时光中享受文字带来的魅力,此外这里也将是孩子们最喜爱的区域。巨大的卡通雕塑、气球形态的墙饰、石头形状的沙发凳,这些设计将物境、情境、意境融为一体,并通过装饰、色彩等元素表达,把设计理念直观的凸显出来。
书店还加入了少量可活动的沙发座椅,可供孩子们阅读绘本或进行各类亲子活动,为售楼处植入不少欢乐氛围。阶梯式的书架,既是座椅也可作为台阶使用,方便拿取摆放在上层的书籍。
透过大面积的玻璃窗,洒进室内的自然光线与内部灯光共同营造出温暖舒适的空间氛围,再融合天然材质的家具、摆件,以此展示出美好的生活风貌。
当然,有了生鲜超市、餐厅、书店空间来分散顾客注意力,减轻集中客流的同时,也要借用洽谈区来帮助回归售楼处的销售主体。洽谈区的位置在入口、前台和沙盘区附近附近,设计的也相当费心,设计师不仅要考虑空间美学,还要给人带来心理上的舒适感。整个区域行径路线因势利导,穿插不同规格形式的桌椅,满足多元的交谈需求,使空间利用率最大化。每组桌椅的排布都有恰到好处的间隔,开放式的设计,明亮充足的自然光,能让人身心得到较好的放松状态,以此达到最好的沟通效果。
柔软舒适的卡座也能使客户在心理上获得一定的安全感,在交流方面也会更加放松,达到舒心愉悦的状态,卡座后面的展示柜,摆放着各种小物件充满生活感和小趣味。沉稳、朴实的色调搭配,在保留了天然元素的同时,也简化了线条,使美观性与功能性的达到完美平衡。桌上的绿植、摆件,消弥了其他繁琐设计。如今,售楼处不再局限于传统的销售模式,还可以转变思维从展现现代趋势潮流,深入生活理念的共性入手,创造出多元复合的运营机制,使其深入人心达到最终效果。
在未来数年,这种新一代营销中心设计,也将不断围绕城市生活不断更新,演化出更多的场景与服务,以此来弥补营销中心短暂性存在的缺陷。当你在喧哗的城市中,看到这样一个地方,你是否会驻足停留片刻,感受设计师带来的这份恬静。