作品信息
作品名称:株洲蔷薇熙岸科技体验馆
Slogan:
本案建筑形态就好似一个具有未来气息的“宇宙飞船”。
企业简介:
上海成执建筑设计有限公司, 上海执琢建筑设计事务所有限公司(建筑设计事务所甲级)(CHALLENGE DESIGN PTE LTD)公司自创办以来始终以“精细化设计,专业化服务”为宗旨,主持设计的作品类型包含了“商业综合体”、“度假社区”、“高端住宅”、“精品酒店“、“文化艺术”等项目,受到了业主及行业的一致好评。
作品展示

01
项目概述
DESCRIPTION OF PROJECT
这座标志性的建筑位于湖南省株洲市天元区,南面可远眺万丰湖湿地公园。建筑形态呈现出两块几何变形的空间序列,并于内部空间和外部景观间建立一个精心编排的体验序列。

⊙区位分析

⊙株洲蔷薇熙岸鸟瞰
科技馆具有极高的艺术性,并在设计上做到了公共性,代表了现代社区中心和空间发展一个令人振奋的趋势。利用光线,几何形体和肌理来创造性地赋予场地地标性,最大化周边环境的协同效应。


02
飞向太空
FLY TO OUTER SPACE
本案建筑形态就好似一个具有未来气息的“宇宙飞船”。而建筑空间的打造,则进一步强化“宇宙飞船”的教育意义。本案具备科技体验馆及社区中心两种功能,相应的场馆也因此划分为一层相连,二层独立的两部分。

⊙形体分析
建筑两部分的转角开口,形成了一个梯形的入口广场。由此进入经过门厅,来访者可以顺着几何空间不断向上,参访两层的各个主题展厅。展厅的主题则主要关注于科学和技术相关的内容,并设置了可供年轻游客参与的互动装置,寓教于乐。

⊙总平面图

⊙前期手绘意向
该建筑不光为来访者提供了一个远眺的景观视角,同时还将来访者的视线引入空间内部,使他们足以观测到微观尺度的信息。

⊙流线分析


在二楼两个体块间预留预留露台空间,来访者可以到达建筑的屋顶露台,从而欣赏万丰湖湿地公园的全景风貌。并于露台预留架设天文望远镜的空间,游客可于此仰望满天繁星。




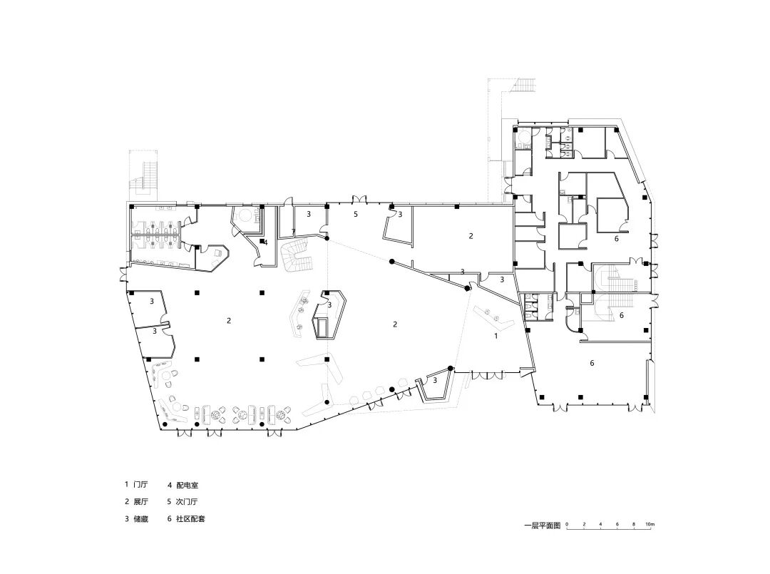
⊙一层平面图

⊙二层平面图
03
几何美学
GEOMETRICAL AESTHETIC
为了在夜晚照亮周界与广场,将建筑通透的玻璃面置于一层,实体的金属面置于二层,激活了内外部的行人体验。立面上仅使用3种建筑材料,纯净表皮最大化展示形态美。

⊙墙身节点大样


用横明竖隐玻璃幕墙轻轻包裹的一层,模糊的室内外界面,使其尽可能地给予周边环境更多的光感,保证通透的视野。并在入口、转角处采用了不同的几何形状和尺度创建引人入胜的建筑。




通过对体块的切割,形成前卫现代的建筑形体。大面积穿孔铝板、仿木纹铝板和玻璃体块的结合,使得整体形象极富张力和工业美感。

⊙东立面图

⊙南立面图

⊙西立面图

⊙北立面图
04
室内空间
INTERIOR SPACE
几何转折的玻璃面、不规则的折线旋梯,与建筑整体风格相呼应的同时,带来艺术感和科技感完美结合的室内空间。




大量三角形元素的自由组合,使整个空间更加有层次感。加上光线与色彩的演变,给予简约又不失丰富多彩的视觉体验。


05
品质管控
QUALITY CONTROL
为保证项目高速落地的同时,建筑本身的品质也能得以完美呈现,由实地集团牵头,相继开展了品质保障会、保障落地会、过程巡检及两次样板段点评。在外部市场化进程和压力中与时俱进,在科学、严谨的流程管控中精益求精,推动了项目的顺利建成。

⊙日景效果图

⊙日景照片

⊙夜景效果图

⊙夜景照片
从发现问题到解决问题,全体管理团队、施工团队、咨询团队、设计团队都展现出超高的专业素养,保证了从设计图纸到建筑实体的100%呈现。

⊙施工过程照片
06
结语
EPILOGUE
几何学是设计师最基本的技能和设计手段,几何形体的使用与组合,反应了各个时代的建筑艺术特征。现代建筑空间的各类问题,也经常在几何学基础上加以解决。在空间设计的趋势下,最大限度地约减材料变化,纯化表面,去除大量非本质的因素,将主题与空间交织在一起。通过折线、转角与光线的变化,将作品本身多层次的复杂景色呈现出来,是本案所带来的启发。

项目名称 | 株洲蔷薇熙岸
地理位置 | 株洲市天元区
项目业主 | 实地地产集团
项目功能 | 科技体验馆
建筑面积 | 2600平方米
建筑设计 | 上海成执建筑设计有限公司
设计总监 | 曾庆华 徐鹏
设计团队 | 堵奇峰 朱坤龙
施工图设计 | 株洲市规划设计院
景观设计 | 新加坡FWZ
室内设计 | 新加坡FWZ
幕墙设计 | 浙江经典建筑装饰有限公司
设计时间 | 2019年7月
竣工时间 | 2020年5月
图文编排 | 成执品牌
项目摄影 | 行知影像
