作品信息
作品名称:南京锦绣樾江府生活美学馆
Slogan:
空间成为引导自身体验当中的一部分,是相互联系的,开放的。
企业简介:
上海成执建筑设计有限公司, 上海执琢建筑设计事务所有限公司(建筑设计事务所甲级)(CHALLENGE DESIGN PTE LTD)公司自创办以来始终以“精细化设计,专业化服务”为宗旨,主持设计的作品类型包含了“商业综合体”、“度假社区”、“高端住宅”、“精品酒店“、“文化艺术”等项目,受到了业主及行业的一致好评。
作品展示

描绘未来生活缩影

△ 总平面图


建构自由漫步空间
空间成为引导自身体验当中的一部分,是相互联系的,开放的。游览者既能以理性的方式穿过各种捷径达目的地,也可感性的四处游逛,使空间更加积极的参与到其中,成为信息化和艺术化的体现。从而将展示空间扩展到外部广阔的地理空间,突破了传统封闭式的、固定式的空间局限,呈现出开放性、日常性的特点。

△ 流线图


入口空间
开启进入美学馆的隐形门

△ 空间分析图
采用内弧形超尺度入口偏置,增加顶部细节添置趣味空间,进一步增强导视性及昭示性,保证视线集中,结合灰空间打造更具仪式感与品质感的入口。


建筑形态
建筑与景观为一体 构筑虚实立体效果
简洁平整的体块组合舒展有序,形成虚实对比强烈的立体效果。通过建筑整体的形态、肌理、光与彩、细部构造等,打造整体化全息空间体验。几何造型的排列组合与玻璃幕墙的结合,将建筑与景观泛光效果为一体,通过简洁清晰的外形,向人传递明确且直观的信息,在夜晚显得格外通透干净。

△ 立面图





△ 前水景空间流线图




活动空间
趣味探索 童心乐谷


将动态的实物以静态的载体由美学的设计要素运用到乐园之中,让儿童直接徜徉在梦幻童话中,感受主题性童梦童享的魅力与生命力。开敞空间在游戏区域的围合边上均设置出口,强调空间的共享,使游戏区域与周围环境相互融合,相互渗透。

合院空间
沉浸青树翠蔓 踱步木踏青苔
通过连廊围合出中庭空间,以动线首先穿过连廊,进入生活展示馆,再穿过一段廊架进入HUB空间,半围合式的布局在保持整体一体化的同时,也围合出多层次的隐密之所。换鞋&等待,可进入两边的样板间。

△ 合院空间分区图





HUB空间
符合人体功能和形式美的原则







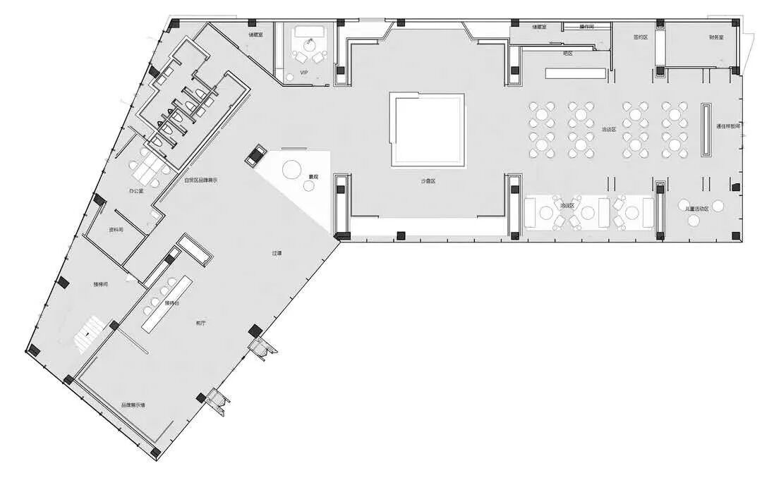
△ 一层平面图
工程档案
项目名称 | 锦绣樾江府
地理位置 | 南京江北新区
项目业主 | 东原地产 华宇地产 绿都地产
项目功能 | 前期售楼处 后期商业
建筑面积 | 1480平方米
用地面积 | 7000平方米
建筑设计 | 上海成执建筑设计有限公司
副总建筑师 | 曾庆华
设计总监 | 唐林衡
设计团队 | 敖翔 李赓 郑荷珍 李侨
施工图设计 | 江苏浩森建筑设计有限公司
景观设计 | 笛东规划设计(北京)股份有限公司
室内设计 | 上海董世建筑设计咨询有限公司
幕墙设计 | 上海安雷幕墙工程(顾问)有限公司
设计时间 | 2019.8
竣工时间 | 2020.3
项目摄影 | 余未旻
室内摄影 | 夏侯全生
 
                         
                     
             
 
 
             
                        