作品信息
作品名称:Base LIVING服务式公寓北京工体店
Slogan:
为创造意义而生
企业简介:
锋界设计成立于2006年,现总部设于中国上海,并在数个一线城市设立了分公司,拥有超过170名中外籍建筑师及室内设计师。专注于创意公建、高端住宅、城市更新及商业空间四个方面的设计研究及实践,近年来公司设计作品先后荣获包括德国GDA、亚洲K-DESIGN、美国IDA在内数十项国内外奖项。主创建筑师们将其在海外学习的西方设计理论与东方审美完美结合,十余年里,一直坚持原创设计,并且非常关注项目的完美呈现。
作品展示
拾一份淡淡的情怀
定义出全新的雅致感
为喧嚣的城市披上一场幽静之梦
一场沉浸式的美学体验便由此展开
印·象
隐逸之境
公寓所在地块被周围的住宅小区和商业广场包围,穿过一条幽静狭长的小道,感受回归自然的身心舒适与放松。
原建筑外立面
改造后建筑外立面
设计在不破坏原有立面的基础上,削弱原来的欧式元素,令建筑语言顺应北京的文化底蕴,宁静但不冷清,线条简单却朴实自然,使项目与周边社区更加和谐统一,整体形成收放的空间韵律,同时也是对“北京小院”主题的形式回应。
希望借以纯粹的自然元素,将人们从忙碌的城市中剥离出来,在这样一座城市里,屏蔽尘世的喧嚣,于浮华闹市之外,塑造一个禅意静谧、小径通幽的返璞归真之地,便是设计对Base服务式公寓(北京工体店)的美好诠释。
聚·场
共享空间
△接待台
喧嚣城市中的“北京小院”,亦动亦静,悠洋蜿蜒。素雅的原木肌理几乎遍布在空间里,每一处似乎都在诉说着过往院中的故事。
△入口
有序的设计语言构建出空间的形态,整体意境宛如一幅画卷缓缓展开,围合出极简格调的入口空间。
自然巧妙的木纹格栅,烘托出雅致的空间氛围,充满序列性和纵深感的黑镜倒映出空间景象,光影交错,相映成趣。
高级灰的空间搭配温暖的木饰面,点缀一抹流线型灯带,让两者相互映照,在这般布局下,灵动的气息与沉稳的色彩在风格中达到美学层次上的平衡。
△大堂
格栅玻璃折叠门可开可合,视线内隐约看到的内部空间,弧光流动,以最纯粹的空间,启发内心意境。
△餐厅
大堂处的“窗格”,与藤编座椅相呼应,绿植环绕,在光影的缝隙里,放下都市生活的压抑与疲惫,散发素雅之美。
集展示与功能于一体的中岛长桌,给人们带来更多选择的同时,唤醒空间的简单通透,让设计回归生活。
△休息区
格栅勾勒出视觉的错落,起伏的山峦纵横在背景墙之上,配合气势磅礴的线条,运用视觉的冲击打造品质感。精奢之美,浑然天成,让洽谈和放松更自在舒雅。
续·章
生活空间
家始终是独特的存在,遮风挡雨的壁垒或收捡疲倦的容器,都不足以描摹它的灵性。相比单纯的空间设计,设计希望让家的每一寸空间,都有居住者自己的故事与个性。
A 户型
灰色的空间基调提升了延展性,酒红的色调迎合着原木的温暖,将空间点缀的舒适。
茶色的长虹玻璃门置入柜体,替代传统实体门的单一呆板,磨砂的质感,竖行的纹理赋予空间新的感官体验,使空间更为灵动。
水磨石砖跃居于电视背景墙中,将空泛的留白填满。
不同材质的搭配、肌理感的变化、色彩的碰撞,以及对质感细节的极致追求,呈现现代时髦又饱含精致韵味的空间。
△A户型图
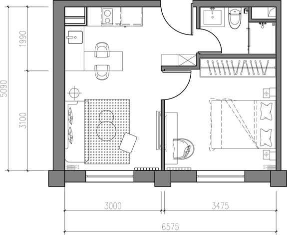
B 户型
原木色中和着空间氛围,还原私密空间该有的宜人温度,安抚从纷繁世界归来的心灵。
装饰画的穿插、融合打破了空间的平淡乏味,空间意趣油然而生,从细节处呈现空间布置的轻奢,整体空间优雅非凡。
带有奇趣意味的台灯、靠枕,是精彩生活的另一种打开方式。
黑白茶几结合艺术摆设,每一处都彰显着回归本心的坚韧,为居住者呈现优雅的生活状态与情调。
△B户型图
D 户型
大理石操作台糅合了线条与几何的影子,共同打造出现代轻奢的调性情境,在不对称的设计中充满浪漫情调。
玄关柜的镂空设计,增强品质感同时让归家的瞬间带来意想不到的温暖。
充满北欧色彩的深灰在增强品质感同时,将空间细节到氛围呈现到极致。
整个空间,在设计师巧妙的搭配组合下,交织出空间的体验深度,让人自然沉浸其中。
简约的家具拉伸整个空间的层次,艺术气韵自由穿梭,释放美感与层次,演绎出独属于生活的烟火气。
△D户型图
以室内色彩作为创意的发散点,借鉴宝格丽酒店的元素,在中式的一抹城墙红色与北欧深灰之间轻柔过渡,达至舒适的平衡。
整体保持了简约调性,将家居形态与质感的描摹,转化为生动诗意的空间语言,消弭了艺术与日常生活的距离。
