作品信息
作品名称:广州金茂万科四季都会
Slogan:
“盒子之下”的街区乐园|社区商业空间的交融与共生
企业简介:
日清设计,2001年成立于上海,始终秉承“删繁就简,溯本清源”的建筑哲学,创始人宋照青以la cime(法语“高峰”之意)命名公司,立足本土并以创造一流建筑为目标。经过十多年的发展,公司已拥有700余名建筑师及丰富的国内外大型项目设计经验,并在国内积累了众多住宅、商业、文化、旅游建成项目及高端客户。希望通过培养中国本土化人才和整合精英设计团队,创造出真正符合地域环境的建筑。
作品展示
金茂万科都会四季
Seasons Mansion
中国,广州
Guangzhou, China
勿忘人性化的建筑尺度,以及保留或发展社区的重要性。
——简.雅各布斯
复合城市 · 社区营造
_
项目位于新塘板块,距离广州市中心27km,紧邻高速,地铁站等交通空间,通勤便利。总建筑面积约70W平方米,包含了邻里中心、小学及幼儿园,住区,是一个集居住,商业,教育为一体的综合性社区。
◎社区营造
社区是通过血缘、邻里和朋友关系建立的人群组合,具有共同的利益和目标。其本质意志表现为意向、习惯、回忆,它与生命过程密不可分。而如何在社区中去创造一个这样一个能够产生共同行为,形成集体回忆的公共空间,则是我们本次设计中需要重点考虑的问题。
◎鸟瞰图
本案中,社区商业中心作为此种公共活动空间的主要载体,以“盒子之下的街区乐园”为主题。通过建筑自身的地标展示性,网红打卡点,多样化的功能等要素相结合的方式,增进邻里中心的记忆点,满足区域居民生活需求,提升居住便捷度。
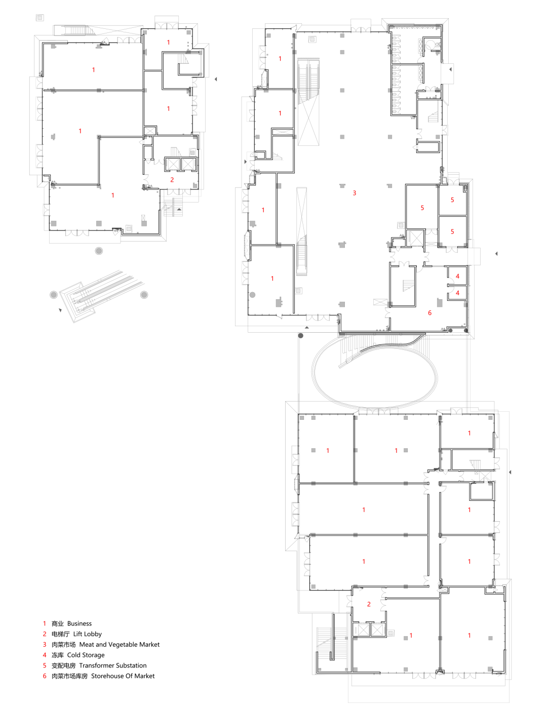
商业中心位于基地的西南角,设计中和谐地处理建筑与广场的关系,建筑形体呈L形布局,退让出足够的亲人尺度的绿化场地,力求为周边规划社区,学校及既存村落居民提供一片可聚,可游,可享的口袋广场。
叠合空间·自由生长
_
◎商业中心透视
建筑主体以现代设计手法为主,强调建筑的体块穿插,虚实结合,以三层盒子统领全局,横向的二层平台将南北两栋建筑有机的连为一体。盒子底部结合岭南建筑特色及气候特点,引入多种形式的架空空间,置石理水,形成视觉核心,为周边的市民提供了遮阳避雨,消暑纳凉的过渡场所。
◎体块生成
扬·盖尔(Jan Gehl)认为:当今社会,人与人之间总是具有隔阂的。为了打破城市和建筑设计的冷漠,实现人,建筑与自然的互动,在设计中需要加入人性化的思考。
本案力图打造一个面向市民全天候开放的立体街区。包含了商业,文化活动站,居民健身房,生鲜超市等多种公共服务空间业态。通过多种形式的首层入口,不同层次的露台,多重的交通体系,让位于不同空间位置的人能够很好的互动交流,使得街区空间变得更具生机和魅力。
◎多层次空间流线
本着“以人为本”的原则,商业中心注重人在空间中的核心价值。满足了各类人群多样化的生活需求,营造了丰富的生活场景,构筑了人,建筑,自然有机结合的建筑群落。
北侧主体建筑 ©行知影像
北侧主体建筑 ©三棱镜
文化活动站位于北侧三楼,采用浅蓝灰高反玻璃幕墙,上下铝板线条为斜面设计,实现外立面纤薄的感觉,三层文化活动站和居民健身馆的盒子犹如漂浮空中,轻重之间表达出了强烈的力量感。北侧沿学校界面强化水平向线条体量,建筑面向北侧一面与学校形成空间上的互动,通透的玻璃幕墙将外部的景色尽可能的吸纳入内部。
◎二层平台透视
南北两栋楼通过二层平台及连廊相连接。水平横向线条与建筑垂直线条形成了和谐的韵律。
◎南侧主体建筑
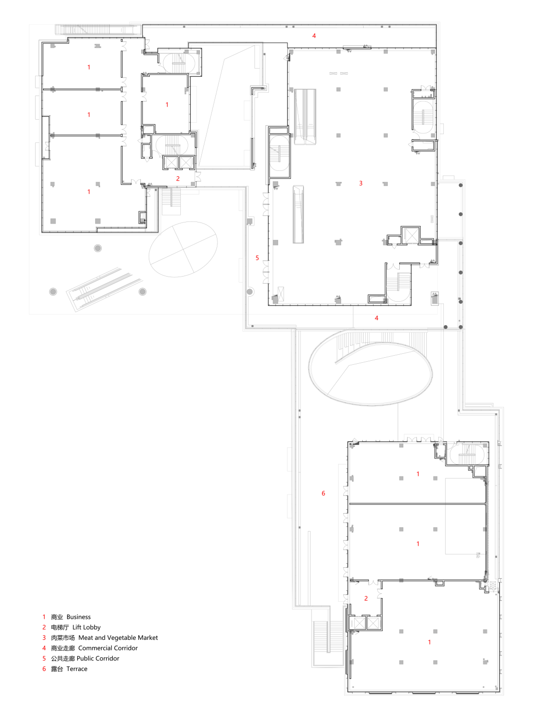
进入商业街内部,首层有生鲜超市,主题餐饮以及各类品牌商家,街区置入一定量的外摆,丰富内街功能,为周边居民提供购物,休憩,娱乐的场所。
◎商业内街
南北两栋建筑连接处为弧形室外楼梯,与景观相结合,形成极具艺术活力的公共活动空间,增强了社区入口的仪式感。
◎弧形楼梯
炫彩玻璃楼梯间,具有较强的交通导向与标识性。设计过程中对多种炫彩玻璃的样板进行比选,达到了最终理想的空间效果。
◎炫彩玻璃连廊
◎居民健身馆与屋顶篮球场的连廊
口袋广场设计中引入了大象IP,互动喷泉,景观水体等元素,融入了家庭,亲子,家园等主题。雕塑感极强的大象IP增强空间昭示性,可互动的内容也吸引了周边市民的积极参与,形成了一种良性的状态,增进了邻里关系的亲密度。
建筑与广场 ©三棱镜
设计中最具标志性的三层直达扶梯,连通文化活动站,结合底部景观、扶梯两侧的炫彩铝板,架空层顶部的水波纹板,形成具有丰富特色的导向空间,增强了文化活动站入口的视觉冲击力。
沿扶梯缓缓而上,到达文化活动站的入口,椭圆形的灯带强化了入口空间,顶部椭圆形的入口犹如新塘之眼一般,豁然开朗,打开了一个崭新的视角画面,给人以震撼的空间感受。扶梯两侧的幻彩铝板在不同光线和角度之下会呈现出丰富的色泽变化。
◎新塘之眼
文化活动站室内以图书为主题,充满诗意的圆弧,呈现一种纯粹的状态,曲线设计如丝带般飘逸舒展,韵律优美、相互交错。市民可以在这里共同交流,共同学习,感受社区氛围与环境。为城市建设增添一处落脚点,成为市民一个交流和触发青春回忆的场所。
文化活动站 ©行知影像
文化活动站 ©彦铭摄影工作室
技术图纸
_
◎总平面图
◎一层平面图
◎二层平面图
◎三层平面图
◎北立面图
◎东立面图(北侧)
◎东立面图(南侧)
◎剖面图
◎节点图
工程档案
项目名称 | 广州金茂万科都会四季
项目位置 | 广州市增城区新塘镇东江大道东侧
业主单位 | 广州万科企业有限公司/中国金茂广州公司事业二部
业主团队 | 陆言清 刘海 孙家鼎 何广深
建筑设计 | 上海日清建筑设计有限公司
设计总负责 | 宋照青 赵晶鑫
大区设计团队 | 刘晓理 陈良鹏 杨国栋 关林欢 袁小川
示范区设计团队 | 胡金舰 程林 林炜力 万霞
施工图设计 | 广东新广厦建筑设计院有限公司
景观设计 | 重庆尚源建筑景观设计有限公司
景观施工 | 深圳市四季青园林股份有限公司
室内设计 | 上海乐尚装饰设计工程有限公司
幕墙设计 | 深圳市朋格幕墙设计咨询有限公司
幕墙施工 | 深圳市瑞玮工程有限公司
建筑面积 | 8657㎡
设计时间 | 2021年1月
竣工时间 | 2021年7月
建筑摄影 | 行知影像 三棱镜 彦铭摄影工作室
                        
                    
            
 