作品信息
作品名称:中铁龙湖·宸阅府
Slogan:
国匠执笔,致献金陵人居新篇章
企业简介:
中国建设科技集团——上海中森建筑与工程设计顾问有限公司(上海中森)成立于2005年,为国家建筑行业(建筑工程)甲级设计资质单位。主要从事住宅、商业、公共建筑等各类型的民用建筑设计(主要业务包括城市规划、建筑设计、室内设计和景观设计)。上海中森一贯注重设计质量,坚持精心设计、技术创新,尤其在城市设计、大型居住社区、超大城市综合体、健康养老、文博建筑及既有建筑改造等领域取得了令业界广泛认同的成绩。
作品展示
“唯经典历久弥新,唯巨匠专注修为”
01
该项目位于南京市雨花台区数字大道北侧,地处软件谷正核。崛起的软件谷已经进入规划变现、未来清晰的2.0时代。基地紧邻S3号线景明佳园地铁站,1站畅达南京南站,三纵三横路网,高效畅行。直距秦淮新河风光带约400m,将军山、牛首山等山水资源环绕,让自然融于生活。
▲区位分析图
▲规划布局分析
02
拥有6000多年的文明史,拥有众多的古建遗迹。
同时为一座现代化都市,南京地处南北之间,文化兼容并蓄,建筑样式也具有由传统建筑走向现代的特点。
正如南京古今中外,兼容并蓄的发展模式,示范区设计也结合古典券廊式与现代极简美学,提炼圆拱形元素到建筑立面,同时呼应景观铺地:运用极简线条排列,序列解构在平面之中。
03
示范区位于场地东南角,数字大道与纵二路交汇处,人流密集,交通便利。作为基地中的黄金位置,前期用作示范区场地,后期可改造为主体商业街,服务社区,也服务城市。
「时光艺术馆」
从中国古典园林到西方极简主义,从古至今,由繁入简。
“一步一景一画卷,移步换景画中游”,借鉴苏州园林的造景手法,曲折幽深,参差自然,主入口设计低调沉稳,起到欲扬先抑的效果。
“山穷水尽疑无路,柳暗花明又一村”,穿过静谧的园林之境,映入眼帘的是极富现代主义色彩的售楼处,简约的形体蕴藏着不简单的设计手法,单元式的幕墙体块彰显着券拱形式的古典美。
04
05
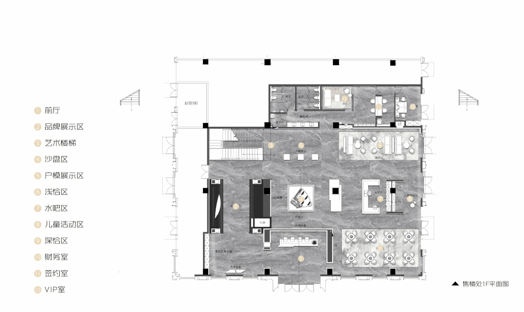
售楼处首层主要为接待洽谈空间,二层为样板房展示与办公空间。由入口门头进入接待大厅,然后经过展示区到达主厅(沙盘区域、洽谈区、水吧区、儿童游乐区),经艺术楼梯可达二层样板间,签约室则位于洽谈区的北侧。
▲分析图
▲售楼处室内前厅效果图
▲售楼处品牌展示区效果图
▲售楼处沙盘展示区效果图
▲售楼处洽谈区效果图
▲样板房实景图
▲售楼处平面图
06
▲售楼处节点详图
主墙面采用葡萄牙米黄干挂石材,超白玻璃幕墙。深咖色铝单板,门头周边包香槟金拉丝不锈钢。
▲售楼处材质分析
项目中大量使用各种类型保温一体板材料,比传统的保温材料更加保温隔热,降耗节能。
▲材质分析
联系电话:021-62120181
企业邮箱:jy@shh.cadg.cn
公司官网http://zsa.com.cn
