作品信息
作品名称:龙湖·宸峯
Slogan:
企业简介:
承构建筑设计咨询有限公司创立于2008年, 历经十余载的发展,分别在深圳和上海设有办公室,承构建筑已经成为业界卓越的方案设计公司。在与客户的共同努力下,曾获得国内最高建筑奖项——詹天佑建筑设计大奖,国际奖-意大利A DESIGN Award金奖、IAI全球设计大奖金奖、法国NDA设计奖以及多次省市级建筑奖项并取得多项国家级实用新型设计专利。承构建筑期待以我们用心的设计成为“国内一线建筑设计咨询企业
作品展示
暂隐繁华世,归居峯林间丨龙湖·宸峯

重庆龙湖·宸峯
Longfor·ChenFeng
中国·重庆
Chongqing,China
■ 项目简介
PROFILE
- 城市印象,山水重庆 -
“山城”重庆,古称渝州。既以江城、雾都、桥都著称,又以山城扬名。山即是城,城即是山。”

- 得天独厚,礼嘉之巅 -

◎ 项目区位
宸峯项目用地位于重庆市北部新区礼嘉板块,居于该板块商务区及高品质生态住区的核心地段,交通便捷,位置优越,距重庆市中心直线距离约14KM,紧邻嘉陵江和崖壁公园,周边生态绿地环绕。作为礼嘉云系的收官之作,如何充分利用绝版景观资源成为本案的关键。

■规划设计
LAYOUT
- 前庭后院,户户佳景 -
总图布局
项目用地11188.00㎡,总计容面积约14043.94㎡,容积率1.2,建筑密度17.14%,共60户,停车位150辆,车位配比高达1:2.5(户/车)。
项目仅由3栋11F洋房组成,其中包含54户202-223㎡的大平层产品和6户325㎡的顶跃复式产品,致力打造低密度低容积率的高端社区,最大化利用嘉陵江和崖壁公园景色,形成“远瞰江近赏园”的规划思路。

3栋建筑沿用地退界一字排开,每栋选取了各自最佳的景观朝向,远可观桥、瞰江,近可赏园,在满足业主对场地功能及精神生活需求的同时,创造居住空间体验的多样性。
前庭:道路的曲折,空间的灵动,树林的掩映,带来移步异景的游赏体验。

◎ 前庭
后院:以“无界”的手法凌江打造精致的会客厅、开阔的观江台,活力的健身角,体验不同的瞰江方式。



一开一合,“入”可享宁静诗意,“出”可观天地壮阔,在这里,身可憩、心可静。
归家动线
采用人车分流的双重动线——人行通过林荫大道、奢隐门庭、景观长廊塑造归家仪式感;车行通过地块东西两个街角的地库出入口入户,避免了车库出入口对内部环境的影响。


■产品设计
UNIT PRODUCT

◎ 效果图
宸峯仅有的60席超级大平层产品,为尽收嘉陵江景专门定制,全系标配面宽18.2米的五开间临江面,无疑是礼嘉板块同类户型的顶级“高光”产品——独立的专享候梯厅;豪华的入户玄关;LDKG一体化设计与多功能大横厅的流动空间,让每一位家人享受亲密无间的互动和自由平等的关爱;14.2米面宽的超大尺度观景阳台更像是一个空中院子,为家人提供了与大自然亲密接触的无界空间;超豪华的主卧空间自成一体。

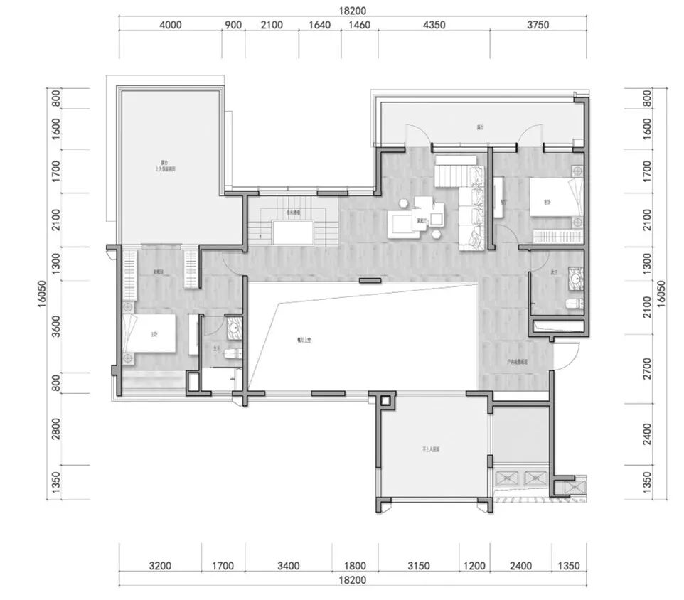
◎ 223㎡大平层标准户型

◎ 窗外视野
在建筑顶层,揽江瞰城的天际复式还拥有双层挑空空间、3起居室、4大露台、高配双主卧、360度视野全景模式。

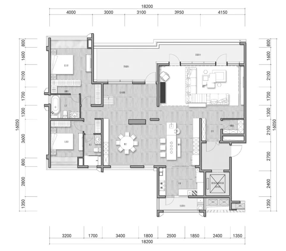
◎ 325㎡顶层复式户型(下层)

◎ 325㎡顶层复式户型(上层)

◎ 顶跃观景效果图
■立面设计
FACADE
回归建筑美学初心,摒弃繁杂元素,让建筑与光影对话。
立面设计源于极简主义理念,强调删繁就简、返璞归真。建筑光影的律动和大开大合的色彩着墨,又将阐释东方美学的黑白灰色调洒脱的运用到极致。


顶部:为两层通高的类幕墙体系,用框架式造型勾勒出极强的公建化住宅轮廓,展现城市尺度的标示性。
中部:采用铝板线条强调横向的韵律感,阳台及飘窗的虚实对比体现建筑立面的肌理感。
材质以大面的水晶灰钢化玻璃和浅灰色铝板为主,局部采用浅灰色和深灰色的质感涂料,使总体的光影关系与局部的材料质感和美共生。


基座:入户门头保证舒适的尺度,采用浅灰色花岗岩石材和古铜色不锈钢板作为建筑主材,营造出极具艺术美学的视觉感受。


- 精雕细琢,诠释静谧美学 -
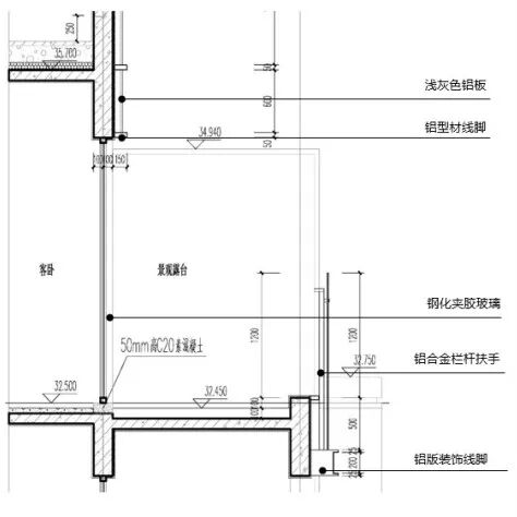
阳台:阳台之间做隔断,既能保证住户实用性和私密性,又能确保阳台界面的连续性。
栏板:采用外挂方式固定,外梁下方用浅灰色铝板外包,形成贯穿14.2米阔景阳台的横向线条,使建筑立面拥有独特精致的工业美感。
飘窗:采用了铝型材,将阔景阳台的横向线条作延伸,在节省材料用量的同时,又保证了立面效果。


◎ 阳台节点

◎ 栏板节点

◎ 飘窗节点
在宸峯,每一种材料都有其自身的情感和温度。我们用平整厚实的石材面板展现力量与坚定,用动感舒展的金属流线勾勒摩登与时尚,用纯净明快的类幕墙表达自由与轻盈……远离尘嚣,理想的家本就应该是这样一个坚固安全又轻松自由的地方。

将东方美学与现代艺术相融,以远山为底、临崖就势,将自然之景引入场地之内,创造人文与自然交融的极致感受。引领业主体验“度假”、“私享”的极简生活美学,实现心灵的放松与沉淀。
此岸,宸峯尽揽蜿蜒壮阔的嘉陵江色;
彼岸,宸峯是与自然共生的绝美风景。
