作品信息
作品名称:上海招商璀璨城市展示中心
Slogan:
上海首个落地的“零能耗永久性模块化建筑”。
企业简介:
DC国际1998年创立于新加坡,经过多年的设计实践,逐渐成长为拥有近300名专业建筑师、规划师的综合性设计公司,同时在上海、宁波、合肥设有办公室。DC国际设计的项目类型多样,涵盖有文化更新、教育建筑、总部园区、综合开发、城市设计及居住建筑,设计品质卓越,追求建筑的实践性和本土性,在对东方设计理念的践行下,梳理出属于DC国际的独特建筑语言。
作品展示
璀璨城市展示中心位于上海市浦东新区顾唐路与金硕路交叉口,周边高校云集,书生意气,于此汇聚,幻彩市集,由此揭幕。


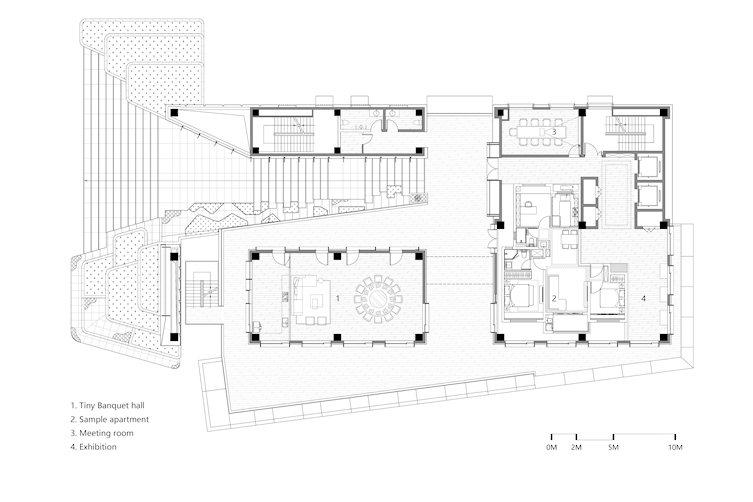
两百米长的先导艺术展廊沿顾唐路展开,空间开放,与周边的互动紧密。展示中心位于街角,五层的体量,不仅兼顾璀璨城市的体验馆,亦是曹路花园城的招商中心,同时也是这座建筑的零能耗技术展厅,多维功能,相互叠加。架空的设计形成了主题多变的星河水阶,引人入胜,步移景易。
作为上海首个落地的“零能耗永久性模块化建筑”,采用了新型钢结构集成模块混合结构体系,使用了光伏直驱空调、光伏幕墙、模块建筑及零碳综合监测管理平台等多项国内领先的技术。
空间加法效应
一座建筑不仅要满足其本身的功能使用,更重要的是,与周边环境与人群的对话,为这座城市服务。

在上位规划中,基地位于唐镇-曹路-合庆城镇圈,是集生产服务和生活服务于一体的综合型新市镇中心。该区域以金海路沿线为发展轴线,加强创新创业服务功能及高等级文化、体育、教育等功能的导入,强化对合庆等周边地区的综合服务, 打造“宜居、宜业、宜学”的综合型城镇。

在璀璨城市展示中心的整体设计中,将街角广场还于大众,置入篮球、乒乓等体育场地,为市民,为周边的学生群体提供户外运动场所。

沿街两百米的先导艺术展廊则以潮玩、潮拍为主题,置入未来星空的元素,造景营势,焕然一新。市民可以在休闲散步中,步入我们设置的场景里,或坐或站,或观赏或游玩,体验一场奇妙的时空之旅。

青年办空间

地块周边有第二工业大学、杉达学院、立信会计学院、上海戏剧学院四所高校,故而,在建筑的四五层,我们预留开放办公空间,形成交互空间,着眼于当代大学生的就业问题,为他们提供更多元化的办公体验,成为他们的追梦助推器。

建筑所预留的空间,还具有多变的可能,任意模块组合,能够得到不同大小的办公容器,可以满足不同办公规模需求的群体,打破传统桎梏,创造多重体验。

在首层的功能考量上,置入咖啡体验区与展示区,在未来功能中,预留健身、游览、花艺等功能,成为市民的能量补给站。


漂浮艺术中心
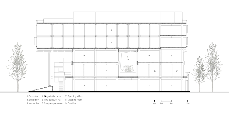
在空间打造上,采用下小上大,下虚上实的架空手法,提升展示中心的昭示性。在北侧挑空的大台阶旁,设置充满序列艺术感的透明亚克力板,灵动的文字、变化的风格,又给建筑带来可变的思考空间。

在立面设计中,选用铝板这一类轻质金属材料,消除立面厚重感,使得其有漂浮于都市之中的轻盈之感。在色彩选择上,以黑白灰为主基色,将橙色作为活力色嵌入其中,增添亲和力与明快感。

近零能耗技术
为响应“碳达峰、碳中和”的节能政策,也出于对建筑和自然环境的对话思考,在设计中采用新型钢结构集成模块混合结构体系,与传统建筑相比,在建造中可节省工期50%,现场人工减少70%,垃圾排放降低80%。

▲ 图片源自合作单位:中建科技集团有限公司
由此,璀璨城市展示中心获得了中国建筑节能协会颁发的“零能耗建筑证书”,同时也是上海首个落地的“零能耗永久性模块化建筑”。





技术图纸

▲总平面图

▲首层平面图

▲二层平面图

▲三层平面图

▲四至五层平面图


▲剖面图
