作品信息
作品名称:厦门保利首开云禧
Slogan:
企业简介:
上海霍普建筑设计事务所股份有限公司于2021年7月在深证证券交易所正式登陆创业板(股票代码:301024)。公司具有建筑设计事务所甲级资质,上海市科学技术委员会高新技术企业认证。是上海浦东新区认定研发机构,上海市BIM 技术创新联盟成员,主营业务包括居住社区、商业办公、城市更新、产业园区、文化教育、医疗康养、文旅等领域的咨询、规划、建筑、室内一体化设计服务。
作品展示

项目概况
Project profile
保利首开云禧位于厦门市海沧区马銮湾新城板块,地处海沧区中心,距离厦门岛内约14km。海沧区地处厦门市西部,是福建南部拓海贸易的重要港口, 是中国大陆主要的国家级台商投资区。唐代开始,海沧就仰仗着得天独厚的地理位置,成为重要的海上贸易枢纽。同时也在历史的长河中渐渐形成了一些自己独有的文化和建筑形式。

▲项目区位
项目旨在立足于城市对传统文化继承的时代需要。通过建筑语言对传统文化的的转译,实现现代化建筑和当地历史文脉的对接。

▲入口设计效果图与实景对比

▲人视设计效果图与实景对比
场地分析
整个项目被道路分为三个地块,其中东孚南路为快车道,车流量较大。其余道路,车流量相对较小或者仍在规划中。

▲项目用地

▲现状分析
经过对地块和周边道路和人流的分析,我们将售楼处放置在A01地块西南角的位置。这个位置不仅交通便利,北侧紧邻厦门一中海沧校区,而且靠近人流量较大的东孚南路,昭示性最好。

▲售楼处总平面图

▲售楼处选址
设计生成
Design generation
“建筑与基地间应当有着某种经验上的联系,一种形而上的联系,一种诗意的连结。”
形态体块
项目展示区用地为长方形带状用地,设计希望以简洁的形体创造出城市街角的标识性,体块关系上以长方体与球体布尔运算相减形成角部的制高点,材料使用上以玻璃与实墙的虚实关系形成立面与内部空间独特的展示性。


▲体块生成
带状用地的西侧将作为展示区的大门入口和景观庭院空间,并为了保证概念的完美度又对翘角的高度与形体进行了进一步的推敲与优化。

传统文化提取:百年新垵
史上的新垵村是个人丁兴旺的宝地,民间曾流传这样一种说法,“看过新垵的厝,就知道新垵的富”。现如今,新垵的原住民早已渐渐搬离,古民居群也成为了厦门海沧区的城中村,厦门市独具特色的古民居群也渐渐淹没在大规模的城市建设中。

▲新垵古民居©网络
我们希望将设计根植于地域的土壤中,通过当地的文化特色和生活习俗,将空间、功能有机结合在一起,将新垵古民居的建筑语言融入到现代建筑语言中,设计出蕴含民族文化特色的现代建筑。于是,我们对新垵传统民居的传统设计语言进行了抽象和转译。

双坡曲
“红砖白石双坡曲,出砖入石燕尾脊。
雕梁画栋皇宫起,石雕木雕双合璧。”
闽南民居远望古厝,最吸引眼球的便是“双坡曲”“燕尾脊”,整个正脊建成曲线形状的屋脊,形如上弦月。我们将这一文化符号运用到我们的设计中,结合几何感的曲线构图,塑造出片区独一无二的形象坐标。


▲“双坡曲”设计元素
漏花墙
我们将古居中的漏花墙也作为立面的设计元素,运用在建筑、景观及入口部分,为整体增添一抹古朴韵味。花墙造型作为立面设计的一部分,既打破了售楼处主体与景观的界线,使整个建筑浑然一体;所形成的光影效果和若隐若现的朦胧感,也使建筑立面增加了光线的变化,为整个建筑空间增加了神秘感。



▲“漏花墙”设计元素
建筑语言
Architectural Language
我们在建筑内部设计了一座红色的旋转楼梯,搭配三层超白玻璃幕墙形成的通透感,以一种“出其不意”的方式串联起室内外空间,其出挑的红色、柔美的形体与建筑素雅的整体气质形成戏剧性的对比。


红色楼梯的使用源于厦门特有的红瓦大厝城市色彩,并且蕴含着花开时的瞬间,盘旋而生长,热情而快乐。
©部分网络
这不仅提高了建筑的现代感,使其与古朴的“双坡曲”和“漏花墙”相辅相成,达到建筑空间趣味性的升华,而且在沿街面上,夺人眼球的红色透过超白玻璃显现出来,这无疑创造了一道亮丽的风景线。

▲室内旋转楼梯
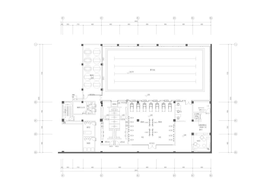
在建筑的内侧,我们还设计了下沉式的泳池,在售楼处内部形成视觉层次感,身处下沉空间,抬头可以仰望不一样的天空和建筑之美。同时也提升了整个小区的品质。

▲下沉庭院泳池

▲地下一层功能示意图

室外空间延续建筑设计语言,用简洁的线条打造大气的空间景观,结合诗书画风格的雕塑和细节烘托,形成充满人文氛围的庭院景观。



▲庭院景观
建筑细节
Detail
建筑材料
建筑材料的选择上,我们不希望用较多的立面材质打破立面的简约感。为了实现宁静素雅,古朴率真的立面效果。我们选用了灰白色的泥客石和香槟金铝板的搭配。


并且为了追求通透感,充分体现室内红色旋转楼梯的视觉冲击力,实现立面上灰白色泥客石的安静与外漏的红色楼梯的激情对撞,我们选用了通透性更好更纯净的超白钢化玻璃。


▲建筑材料


建筑立面改造策略
功能上,前期作为售楼处,后期会改造为沿街商业。我们在设计立面时也将后期的商业功能考虑在内。由于后期商业的使用功能的变化,原本销售所需的大空间可被灵活转变为商铺所需的小空间。

为使建筑立面保持前后的一致性,且减少改造成本,我们结合商铺的划分,结构柱的位置,对立面的幕墙进行了模数化处理,使幕墙在改造中仅需要将商铺门的位置替换即可满足使用需求。这不仅尽可能的保存了立面的原汁原味,而且大大降低了改造的成本。

展示区平面图

▲地下一层平面图

▲一层平面图

▲二层平面图
